DoubleTree Breckenridge

Recently updated, the DoubleTree by Hilton Breckenridge is directly across the street from Breck’s legendary ski slopes, offering a true mountain experience with spectacular views. Our full-service, slopeside hotel is within walking distance of the chair lift, as well as historic Main Street.

Property Details

EVENT SERVICES  GUEST ROOMS & AMENITIES LOCATION
  • 11 meeting rooms
  • 9,000 square feet of meeting and event space
  • Seating capacity of 420 people
  • Event facilities conveniently located on one floor
  • Picture windows and balconies revealing natural light and spectacular views
  • On-site catering & audio-visual services
  • Teleconferencing capabilities
  • Complimentary wireless high-speed internet in public areas and meeting rooms
  • Business Center
  • 208 spacious guest rooms
  • Complimentary wireless high-speed internet
  • Complimentary in-town shuttle
  • Indoor pool, outdoor hot tubs, and access to off-site outdoor pool
  • State-of-the-art fitness room
  • In-room dining and restaurant open for breakfast, lunch, après-ski, and dinner
  • Breck Sports rental & retail shop on-site
  • Energy Star rated
  • On-site market
  • DoubleTree Sweet Dreams Bedding
  • Walking distance to the Base of Peak 9
  • Two blocks from vibrant Main Street Breckenridge
  • Directly on the town’s free shuttle route
DoubleTree Breckenridge

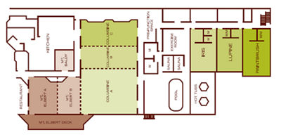
Room Sizes & Capacities

Room Name Dimensions Square Feet Room Configuration
Theater Conference School Room Hollow Square Banquet Reception
Columbine Ballroom 48 x 90 4320 420 - 175 - 300 450
Columbine C 42 x 23 1104 100 30 63 30 60 120
Columbine B 48 x 22 1056 80 30 63 30 60 120
Columbine A 48 x 45 2160 200 48 110 48 120 235
Mt. Elbert Ballroom 51 x 31 1581 150 30 70 45 120 200
Mt. Elbert A 25 x 31 775 60 24 40 28 50 65
Mt. Elbert B 26 x 31 806 60 24 40 28 50 65
Mt. Baldy Boardroom 20 x 18 360 20 24 18 24 30 60
Iris 22 x 26 572 50 24 27 24 40 60
Lupine 29 x 26 754 60 24 36 32 50 60
Paintbrush 30 x 26 780 60 24 36 32 50 60

Layout

DTB_GroupsLayout